This gallery is a compiled set of drawings created using Autodesk Inventor. Using the client's specifications and P&ID's, these drawings where developed.
Main Reverse Osmosis Building Layout

Video Displaying All Primary System Assembly Components

Overall System Layout Video

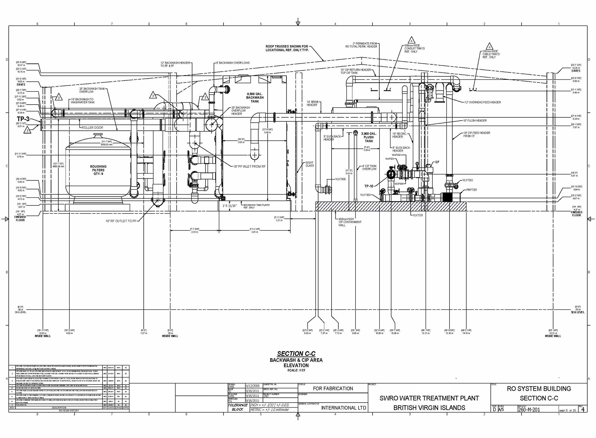
Backwash System

Video Displaying the Backwash Cleaning System Components

Clean In Place (CIP) System

Video Displaying the Clean-In-Place System Components

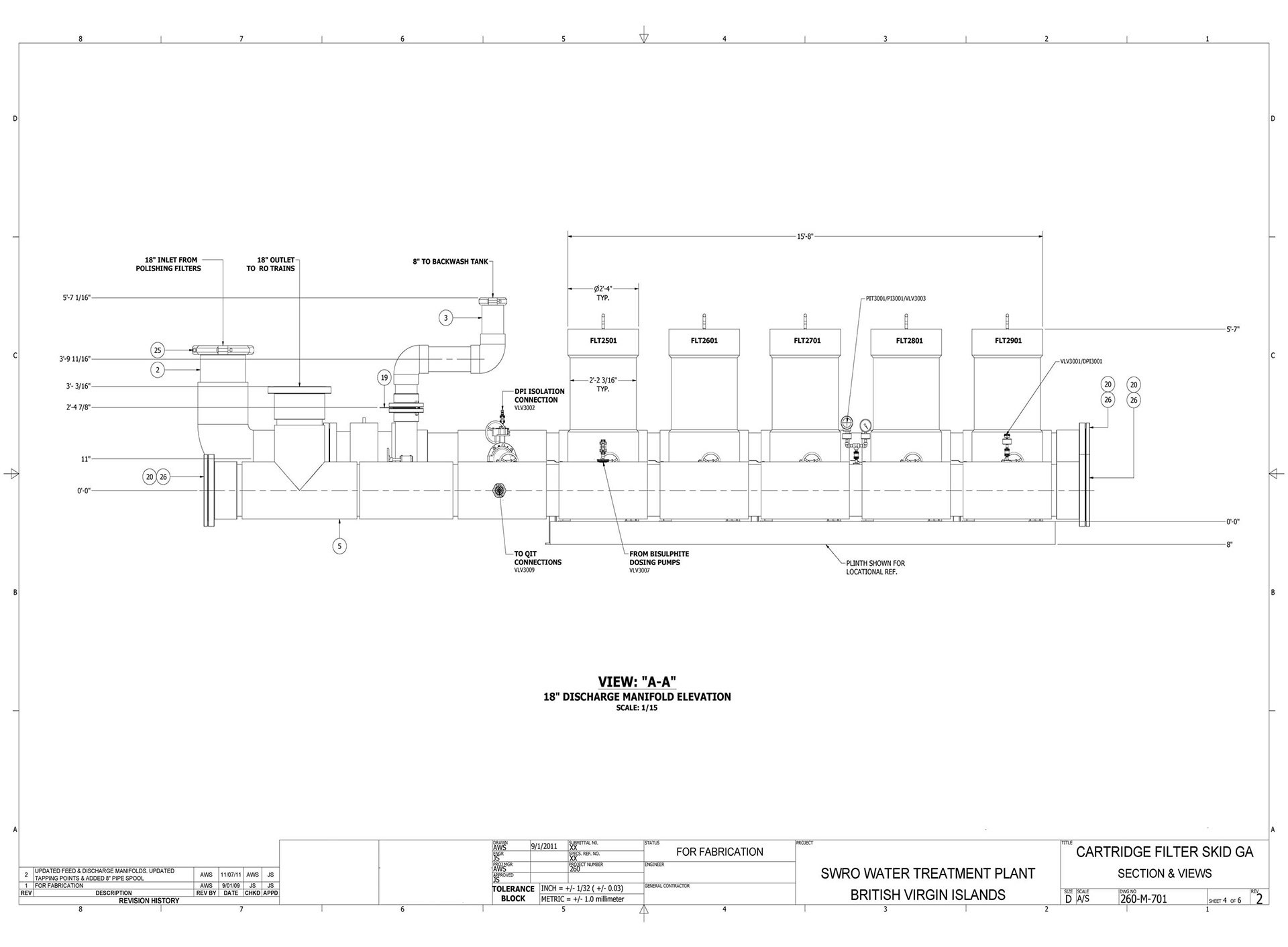
Cartridge System

Video Displaying the Cartridge Filter System Components

Multimedia Filters

Video Displaying the Multimedia Cartridge System Components

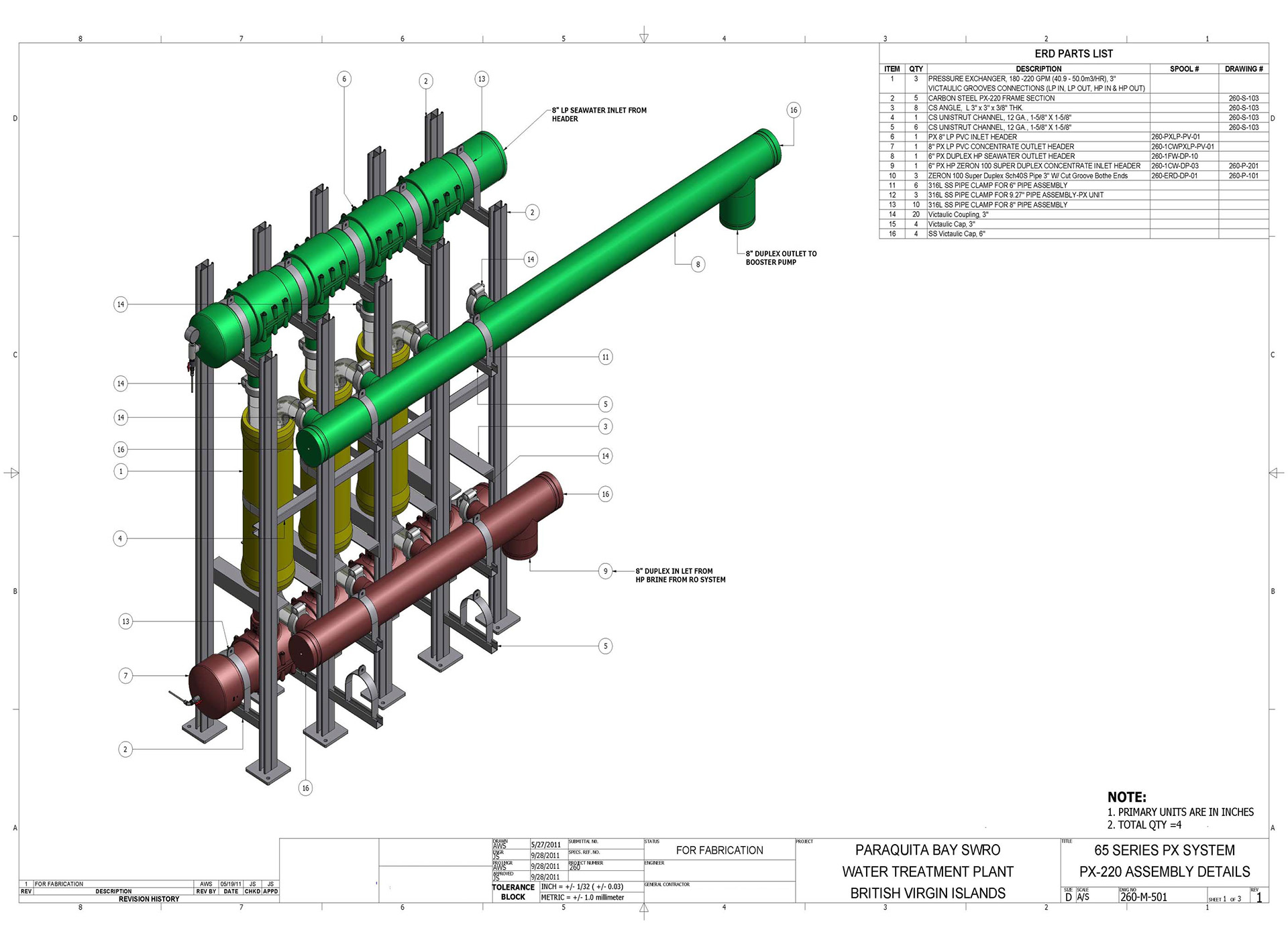
PX-Energy Recovery System

Video of Energy Recovery System Components

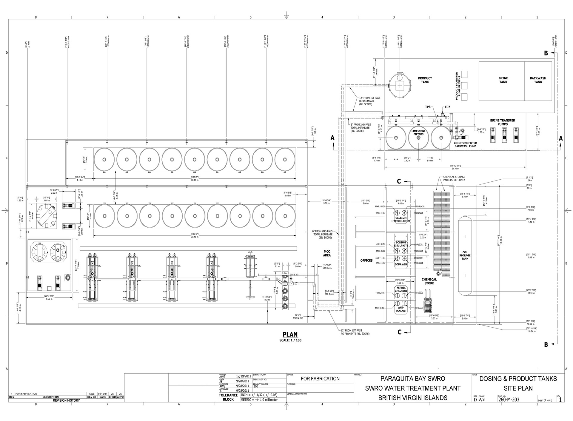
Dosing Building Layouts

Dosing Building Overview

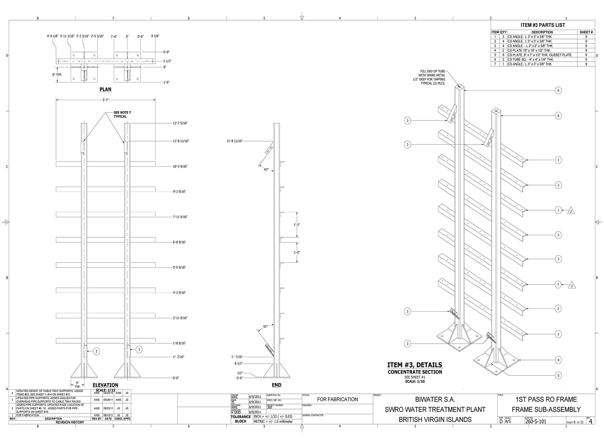
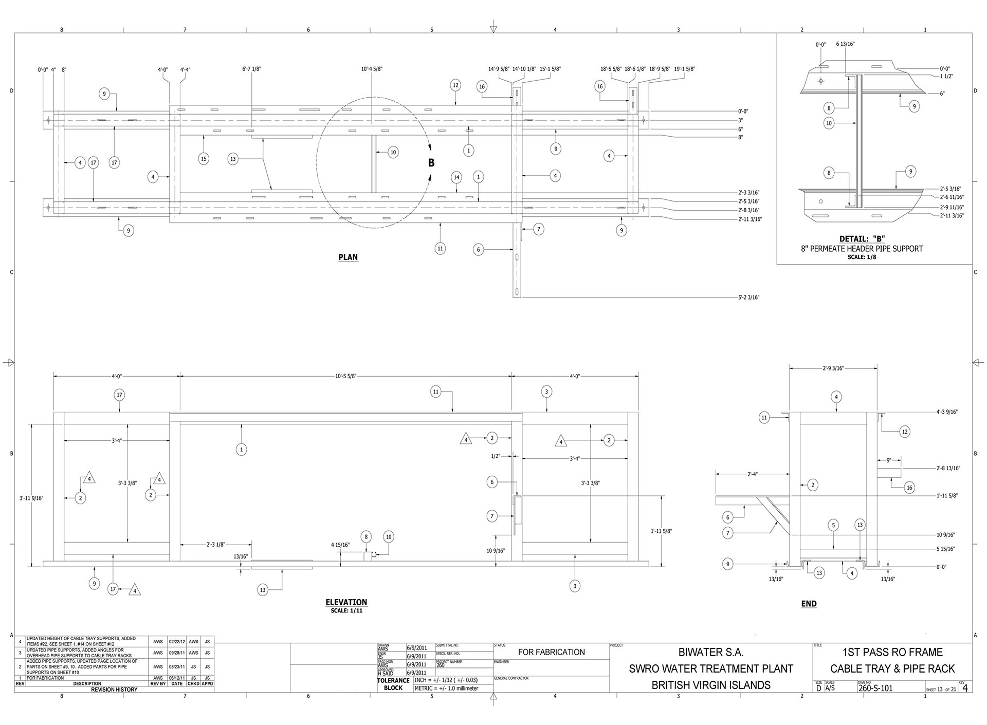
1st Pass Reverse Osmosis Train
1st Pass Reverse Osmosis Frame
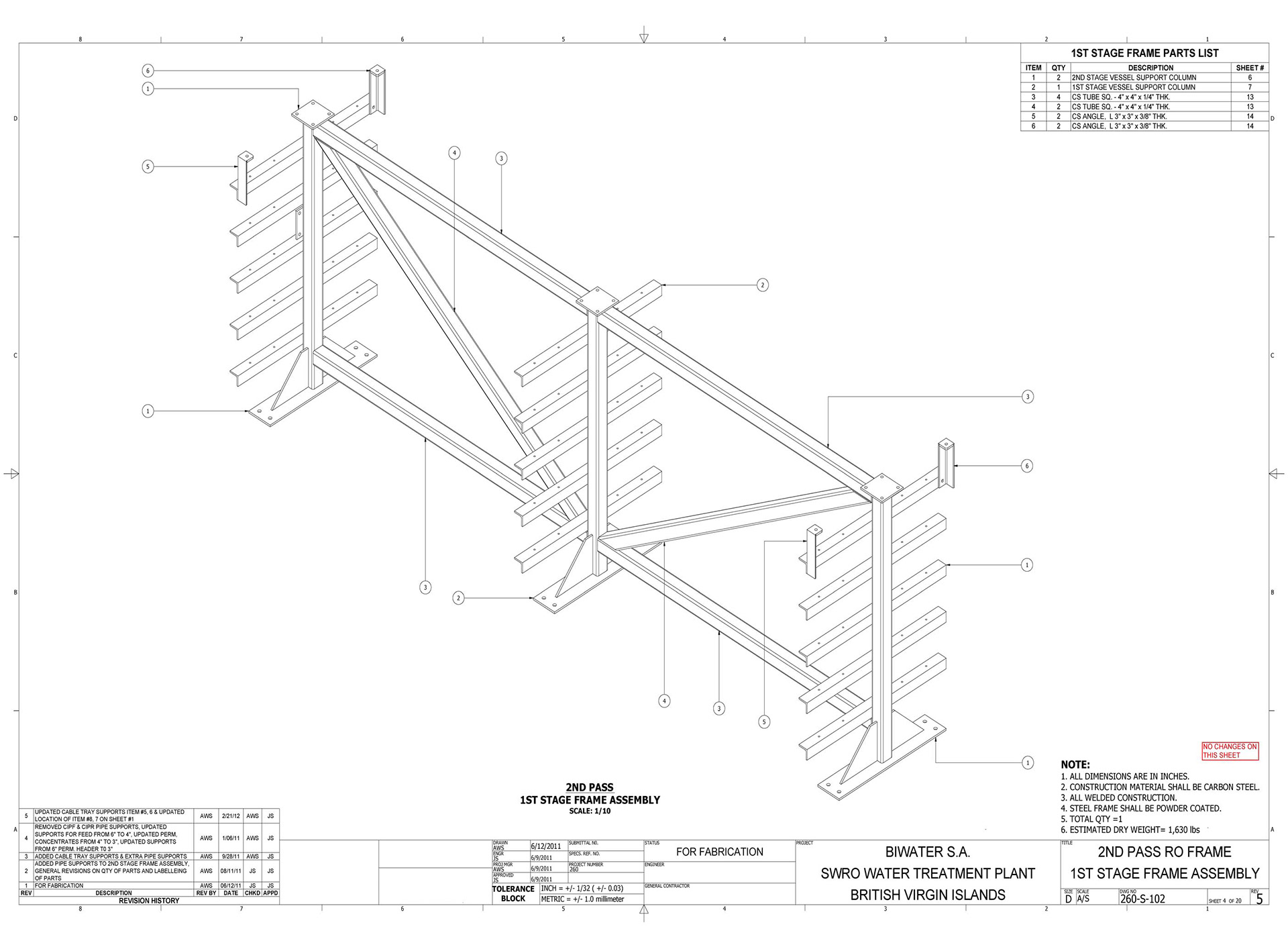
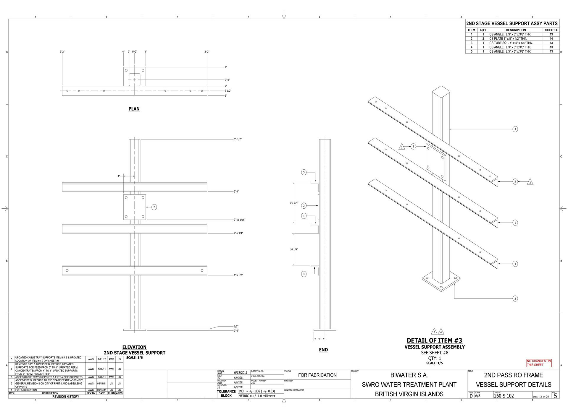
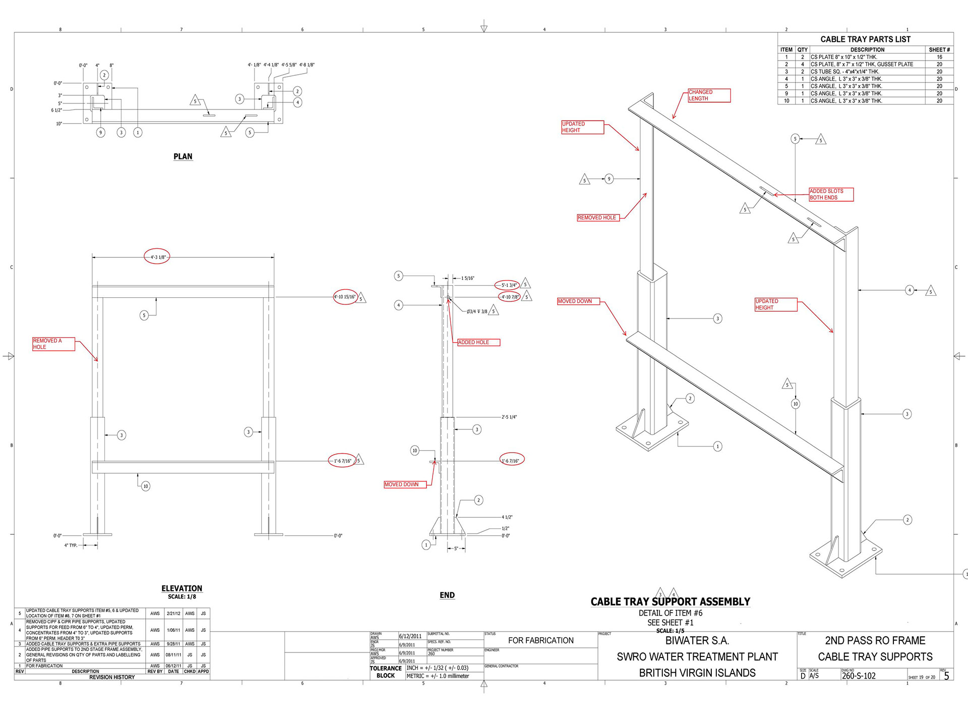
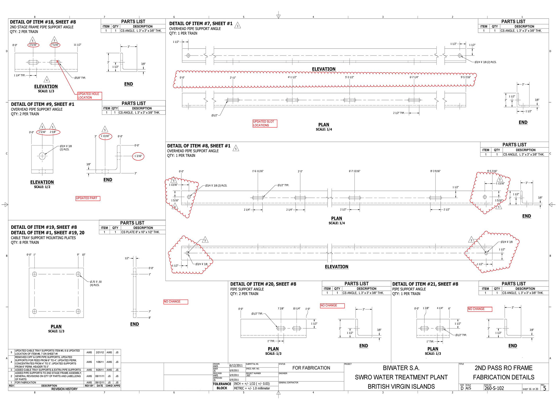
2nd Pass Reverse Osmosis Train
2nd Pass Reverse Osmosis Frame
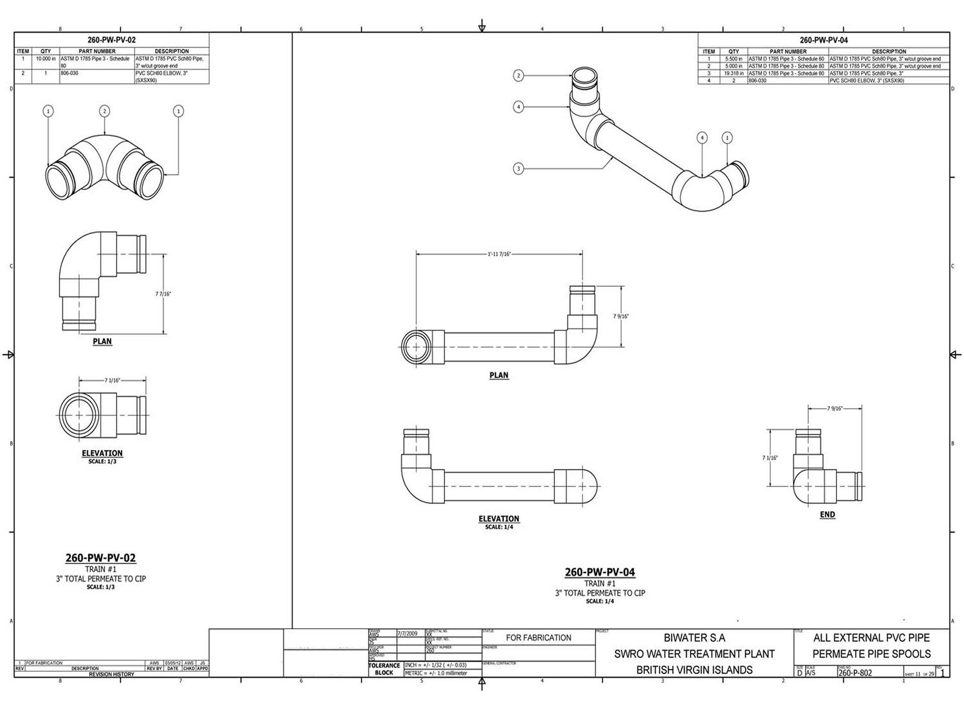
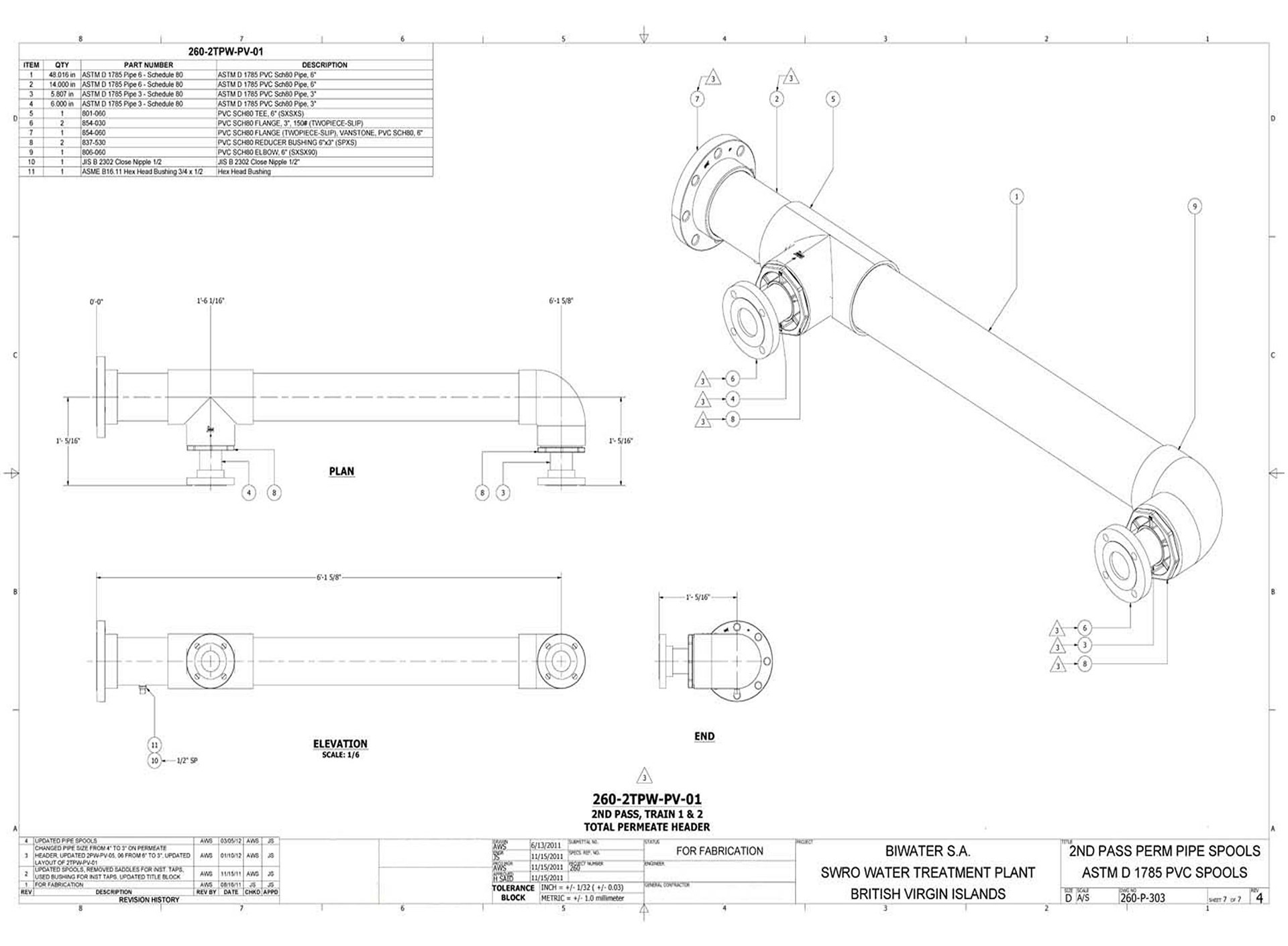
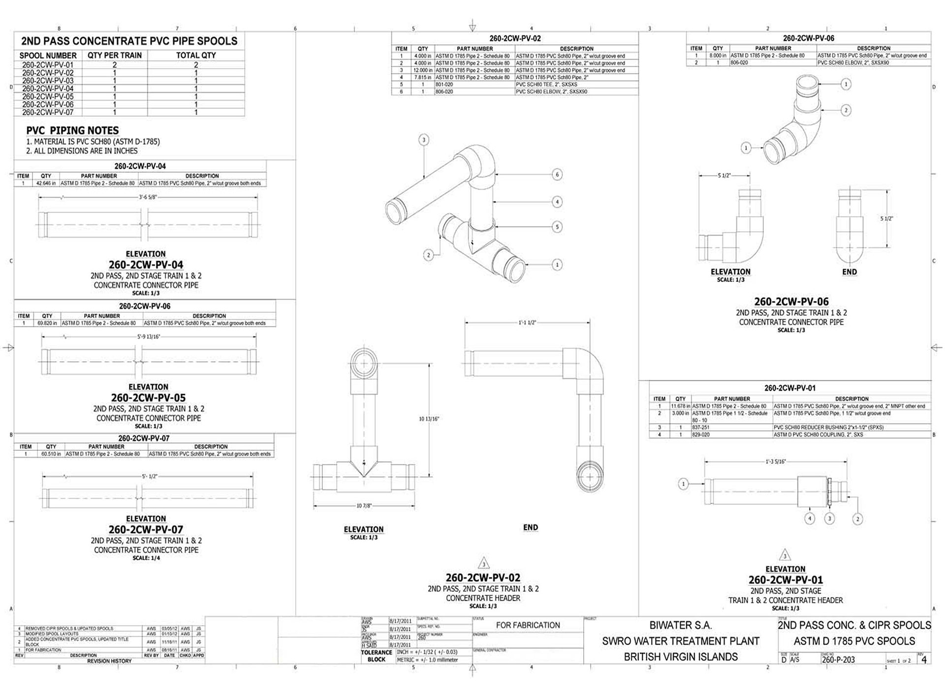
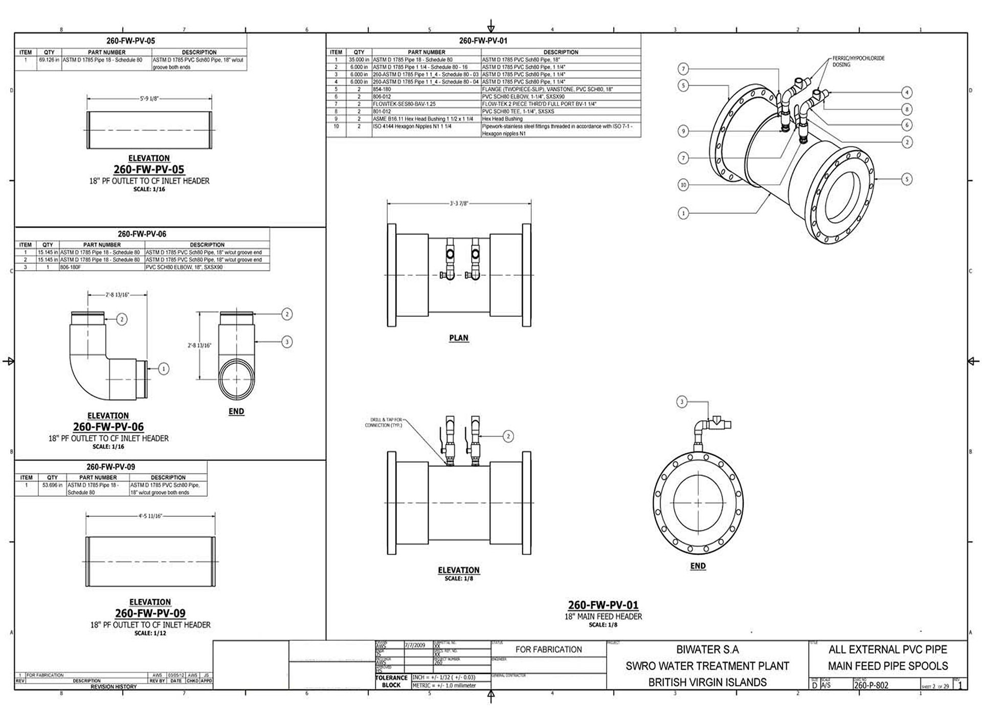
PVC Piping Spools

You may also like

Back to Top